业务咨询:13885122331
液压升降平台,液压货梯,悬臂吊,电动平板车
首 页
走进黔力
新闻动态
产品展示
电动单梁起重机
电动双梁起重机
悬臂吊
电动平板车
星空官方站登录入口
您所在位置:
贵州黔力起重机械设备有限公司
>
产品展示
>
电动平板车
电动单梁起重机
电动双梁起重机
悬臂吊
电动平板车
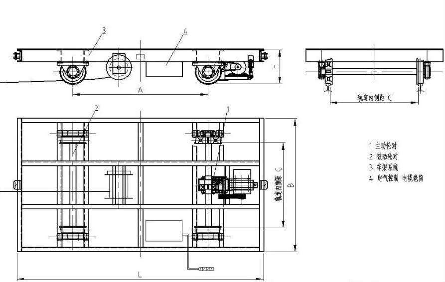
电动平车产品平面图纸
点击次数:6275
>>>上一条:
电动平车支持定做厂家直销
>>>下一条:
200T电动平板车
星空体育·(中国)官方网站
|
星空线上官网(集团)官方网站
|
开云足球体育_开云足球(中国)
|
多宝注册
|
kaiyun开云体育平台
|
乐鱼买球·(中国)官方网站
|
九游体育官方入口
|
多宝官方注册
|
星空体育APP网站/手机版下载/官网登录入口
|